Listing

For Sale

Open House:
April 19th 1:00 PM to 4:00 PM

$695,000

242 Old Turnpike Rd
, Tewksbury Township, NJ 07830

3

Bedrooms

2.5

Bathrooms
  • 242 Old Turnpike Rd
  • 242 Old Turnpike Rd
  • 242 Old Turnpike Rd
Property Type:House For Sale
MLS ID:4017286
Bedrooms:3
Bathrooms:2.5
Water:Public
Sewer:Septic
Year Built:1983
Taxes:$11,423
County:Hunterdon
Lot Size in Acres:3.35
Listing Courtesy: Donna Snyder, Clinton Weichert
What Makes This Special

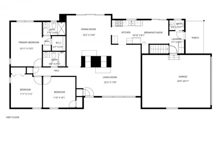
Set on more than 3 acres in highly sought-after Tewksbury Township, this ranch-style home offers the rare combination of single-floor living and a location surrounded by some of the area's most exquisite homes and picturesque horse farms. The setting provides both privacy and a scenic backdrop that's increasingly hard to find.The home features 3 bedrooms and 2.5 bathrooms, with a functional layout designed for comfortable everyday living. At the heart of the home, a striking two-sided brick fireplace serves as a focal point between the dining room and living room, adding warmth, character, and a natural gathering space for entertaining or relaxing.With expansive outdoor space, a desirable township location, and the ease of one-level living, this property presents a unique opportunity to enjoy the charm and tranquility that make Tewksbury so desirable.

Photo Gallery

For more info about this Listing or if you are searching to buy or sell a home, please contact:

Elizabeth Perez

RealtorĀ®

Phone 908-319-0049
Office 908-735-8140
Email eperez2@weichert.com

For more info about this Listing or if you are searching to buy or sell a home, please contact: